CN EN
万科清林径别墅
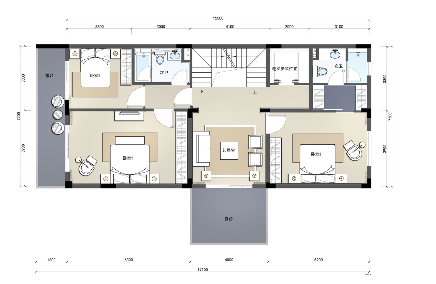
1.项目概况 项目名称:万科清林径 户型:联排别墅 户型室内面积:约589平方米 户型格局:五房一书房四厅一厨房七卫 2.功能定位 在建筑的空间条件下,合理进行空间加建改造,结合私人会所式的商务、休闲、休憩功能,倡导新品味的思路,营造舒适、休闲、简明、自然环保有品位的文化气息,走简洁大方、低调硬朗路线。 3.背景资料对于设计方案的指导意义 a.营造大气、自然、宁静的大都市概念。 b. 了然文化风潮,高贵、自然、休闲、舒适,符合其目标人群主流审美的调性风格。 项目背景分析
设计理念

1.项目概况

项目名称:万科清林径

户型:联排别墅

户型室内面积:约589平方米

户型格局:五房一书房四厅一厨房七卫

2.功能定位

在建筑的空间条件下,合理进行空间加建改造,结合私人会所式的商务、休闲、休憩功能,倡导新品味的思路,营造舒适、休闲、简明、自然环保有品位的文化气息,走简洁大方、低调硬朗路线。

3.背景资料对于设计方案的指导意义

a.营造大气、自然、宁静的大都市概念。

b. 了然文化风潮,高贵、自然、休闲、舒适,符合其目标人群主流审美的调性风格。

项目背景分析

相关案例
联系我们
深圳市卓航工程装饰有限公司
地址:深圳市龙华区民治樟坑优品文化创意园1栋4楼
电话:0755-82211258
传真:0755-82211258
邮箱:info@szzhuohang.com

Copyright © 2018. 深圳市卓航装饰工程有限公司 .All rights reserved. 粤ICP备15032280号