CN EN
东海国际
东海国际中心二期B区公寓工程(含裙楼及部分地下商业)-B座标准层装饰工程位于深圳市福田区深南大道7888号东海公寓,公寓塔楼A栋有82层,总高度308.62米;公寓塔楼B栋有75层、屋面高度283.5米,双塔式服务式商务公寓位于发展项目西面,他们为城市生活标准定位新指针,大楼耸立300米,并饱览城市景貌,将成为顶级生活的标志,单位户型由开放式工作间,2至3房到复式特色单位迎合不同的市场要求。 B座标准层装饰工程设计单位为HBA设计公司,以“顶级都市生活标准”为生活理念。装修范围为B座4-74层电梯厅
设计理念
   东海国际中心二期B区公寓工程(含裙楼及部分地下商业)-B座标准层装饰工程位于深圳市福田区深南大道7888号东海公寓,公寓塔楼A栋有82层,总高度308.62米;公寓塔楼B栋有75层、屋面高度283.5米,双塔式服务式商务公寓位于发展项目西面,他们为城市生活标准定位新指针,大楼耸立300米,并饱览城市景貌,将成为顶级生活的标志,单位户型由开放式工作间,23房到复式特色单位迎合不同的市场要求。

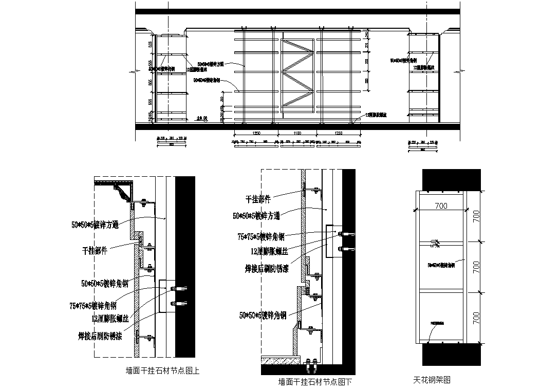
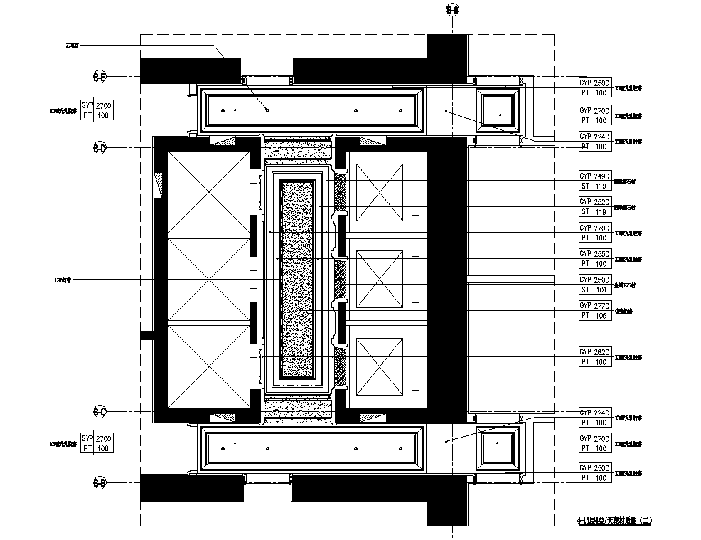
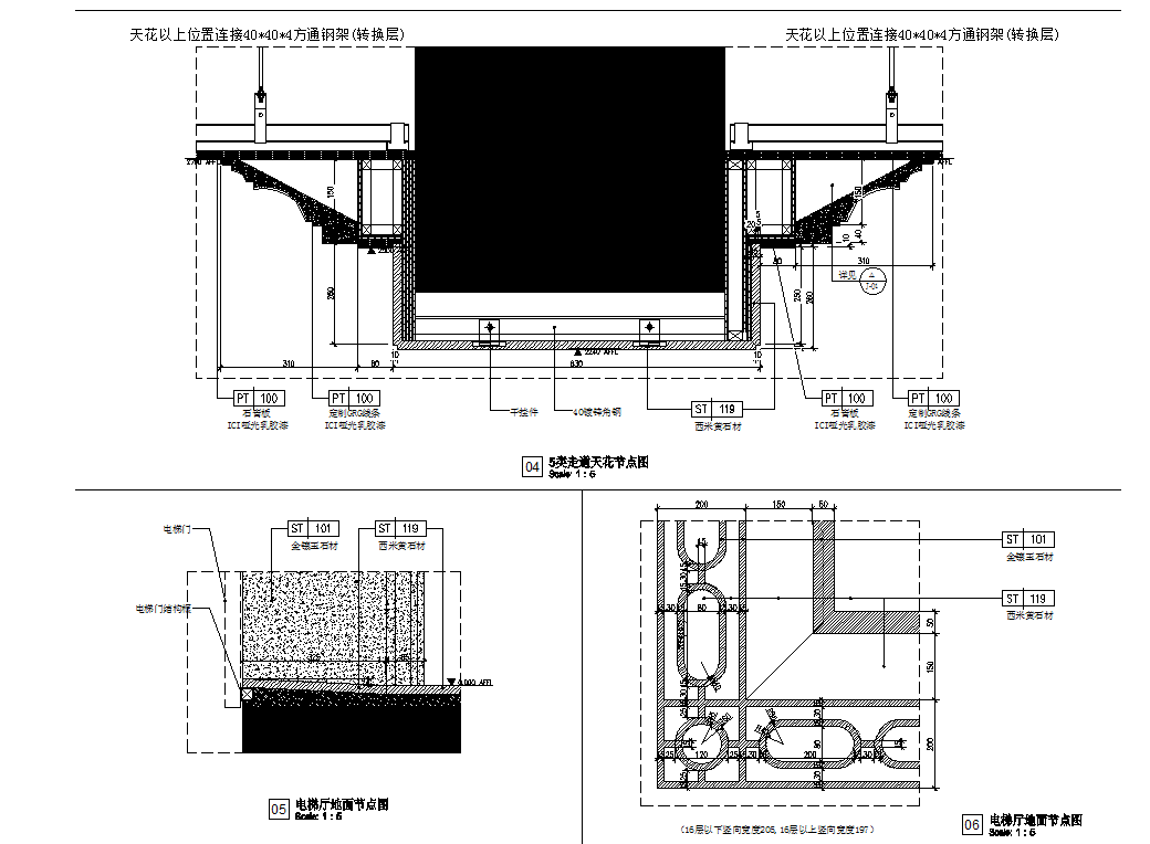
B座标准层装饰工程设计单位为HBA设计公司,以“顶级都市生活标准”为生活理念。装修范围为B4-74层电梯厅精装修,墙地面以西米黄、金镶玉石材造型安装,走道墙面面饰手绘墙纸,天花轻钢龙骨石膏板吊顶。

相关案例
联系我们
深圳市卓航工程装饰有限公司
地址:深圳市龙华区民治樟坑优品文化创意园1栋4楼
电话:0755-82211258
传真:0755-82211258
邮箱:info@szzhuohang.com
Copyright © 2018. 深圳市卓航装饰工程有限公司 .All rights reserved. 粤ICP备15032280号